Krajina
Chorvatsko
Umístění
Omiš
Referenční číslo
8171
Typ
Kamenný dům
Velikost
65 m2
Věk
1930
Patro
2
Doporučeno
Zahrada
Fantastický výhled
Vzdálenosti
Moře
200 m
Škola
500 m
Administrativy úřad
1000 m
Supermarket
400 m
Popis
Na prodej je samostatně stojící starý kamenný dům, který vyžaduje kompletní rekonstrukci / celkovou renovaci. Nachází se na vynikající lokalitě, pouhých 200 metrů od moře a pláže. Výhled na moře, krásná pláž, blízko Omiše.
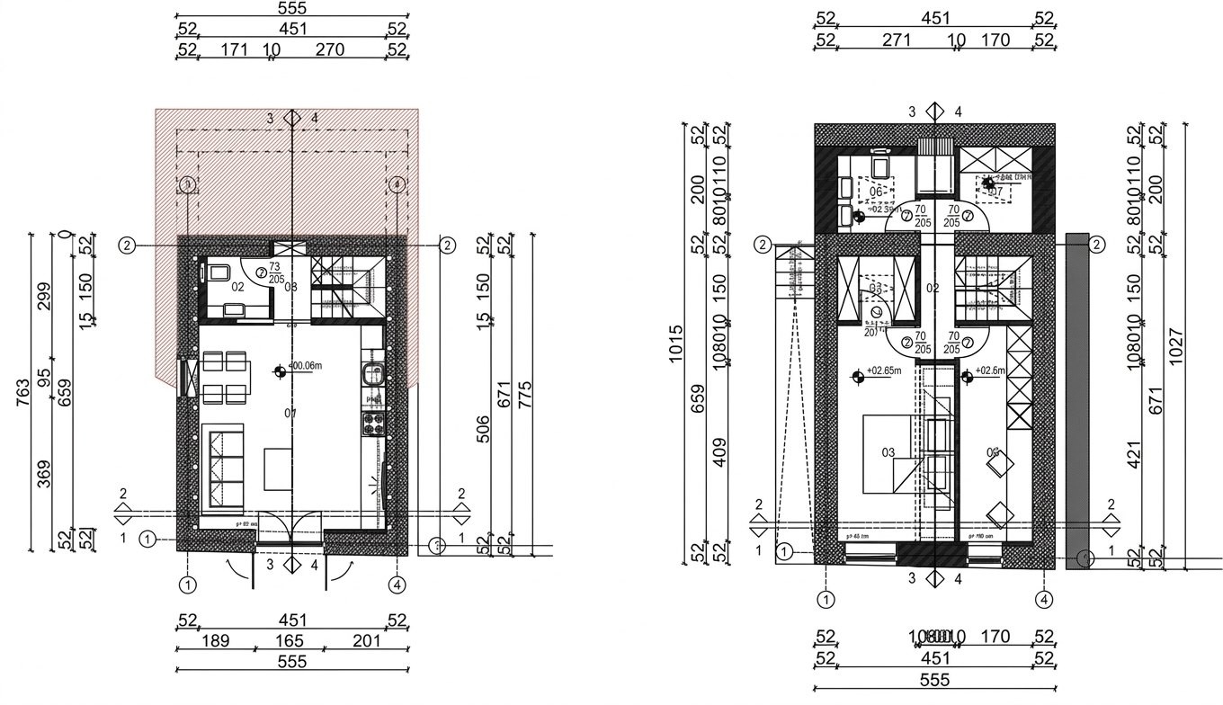
Existuje koncepční plán rekonstrukce. Půdorysy přízemí (29 m² netto) a patra (38 m² netto) jsou zobrazeny na našich fotografiích. Plocha pozemku: 154 m².
Výborná nabídka pro vaše letní dovolené / prázdniny...
Adriatica Real Estate
www.adriatica-estate.com
Kontakt: +385 99 2018 000
Veřejnost
O Omiš
Omiš je malé město v srdci Dalmácie a leží u ústí řeky Cetiny.
Omiš se nachází 21 kilometrů jihovýchodně od největšího dalmatského města Splitu, se kterým je velmi dobře dopravně spojen (autobusová linka každých 20 minut).
Dnes je Omiš a jeho okolí zaměřeno na rozvoj cestovního ruchu a díky přírodě, která jej obklopuje, má významné místo v chorvatském cestovním ruchu.
V této oblasti 30 kilometrů (Jesenice, Dugi Rat, Duce, město Omiš, Stanići, Čelina, Zavode, Lokva Rogoznica, Mimice, Medići, Marušići, Pisak), která je dlouhá jako Omišská riviéra, jsou všechny druhy pláží, které existují.
Všichni, kdo chtějí v této oblasti uniknout před hlukem města, najdou klid v přírodě a malých rybářských vesničkách na Riviéře.
A kdo chce aktivní dovolenou, je na správném místě – rafting na řece Cetina, volné lezení, paragliding, potápění, plachtění, plážový volejbal, tenis atd. Zkrátka všechny sporty si užijete na souši, na vodě i v vzduch.
- Populace:
- 12000
- Velikost:
- 266 km2
- Školy:
- 5
- Fakulty:
- 0
- Školka:
- 7
- Knihovny:
- 2
- Divadla:
- 0
- Kina:
- 1








